
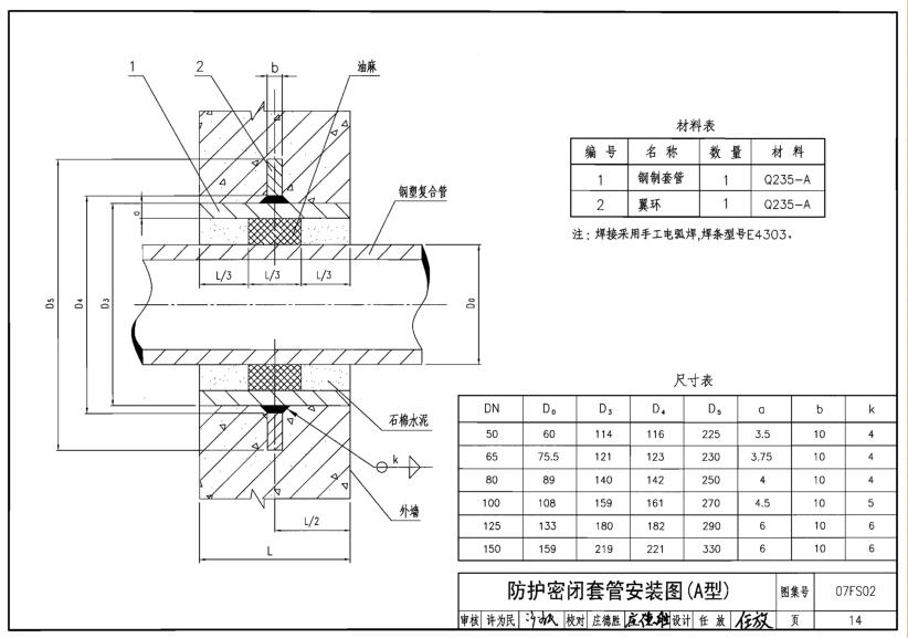
07FS02剛性密閉套管
密閉套管使用方法:
1、人防區一般都要安裝密閉套管。
2、套管兩邊出墻設計為5CM,套管長度根據預埋剪力墻厚度加16CM,考慮抹灰2-3CM厚度。
3、套管要固定好,防止移動,套管兩側出墻平均。
4、預埋是盡量不要焊斷鋼筋,預埋高度根據現場定。
具體數據如下:
密閉防水套管分為A型、B型、C型、D型、E型、F型,選型時根據環境選擇型號。
07FS02剛性密閉套管
密閉套管使用方法:
1、人防區一般都要安裝密閉套管。
2、套管兩邊出墻設計為5CM,套管長度根據預埋剪力墻厚度加16CM,考慮抹灰2-3CM厚度。
3、套管要固定好,防止移動,套管兩側出墻平均。
4、預埋是盡量不要焊斷鋼筋,預埋高度根據現場定。
具體數據如下:
密閉防水套管分為A型、B型、C型、D型、E型、F型,選型時根據環境選擇型號。
S312圖集柔性剛性防水套管 柔性防水套管是適用…
07FS02剛性密閉套管 密閉套管使用方法:1、人防區一般都…
07FD02穿墻防水套管密閉肋 07FD02穿墻防水套管密閉…
02S404剛性防水套管 02S404剛性防水套管,又叫穿墻套管,…